ヴェルディ・ソレイユこころ 8階(売買 中古マンション) | 広島市佐伯区石内北 | 佐伯区・廿日市市と広島市周辺の不動産情報はヤマダ不動産 佐伯店へ。売買物件情報・新築相談・リフォーム・老人ホーム紹介等はおまかせ下さい。

ヴェルディ・ソレイユこころ 8階 | 広島市佐伯区石内北の不動産物件

【中古マンション】 駐車場あり ペット 角部屋
価格 3,480万円 (税無)
アストラムライン 広域公園前駅 徒歩41分
スマホ表示
物件コード:94642
所在地 管理費 専有面積
バルコニー面積
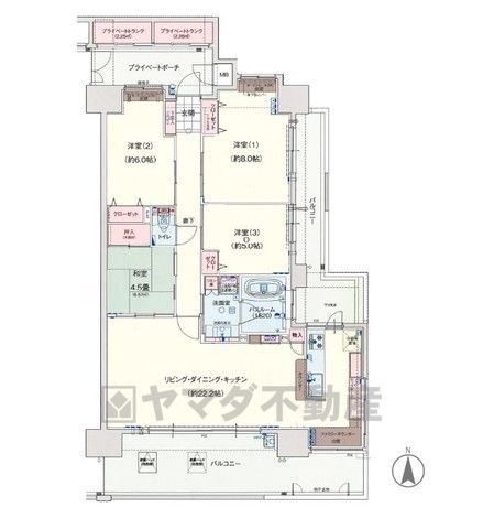
間取り
所在階
築年月
広島県広島市佐伯区石内北1丁目 9,000円 95.13m2
33.69m2
4LDK
8階
2014/02

物件基本情報

物件種目 中古マンション
物件名称 ヴェルディ・ソレイユこころ
所在地 広島県広島市佐伯区石内北1丁目
交通
アストラムライン 広域公園前駅 徒歩41分
修繕積立金 12,840円
所在階/階数 8階 / 14階建
総戸数 78戸
建物構造 鉄筋コンクリート造
駐車場 空有 500円 (税込)
学校 石内北小学校 / 大塚中学校
設備・条件
  • オートロック
  • 宅配ボックス
  • トランクルーム
  • 食器洗乾燥機
  • 角部屋
  • ペット相談
  • カウンターキッチン
  • システムキッチン
  • バルコニー
  • キッズルーム
ヤマダ不動産 佐伯店
Tel082-943-7447
お気軽にお問い合わせください。

画像・写真

周辺地図

地図を表示中...
ストリートビュー未対応エリアです。

物件詳細情報

物件用途 居住用 土地面積 -
間取り詳細 - 土地権利 所有権
部屋の向き 地目 その他
専有面積基準 壁芯 都市計画 市街化区域
施工会社 - 用途地域 近隣商業地域
現況 空家 国土法届出 不要
引渡時期 相談 取引態様 仲介
設備その他 -
特記事項 -
備考 -
情報更新日 2026/02/15 広告有効期限 2026/03/01
電話でお問い合わせ
ヤマダ不動産 佐伯店 店舗情報
[所在地] 広島県広島市佐伯区楽々園4-14-32ヤマダ電機テックランド佐伯店 1階
Tel082-943-7447
お気軽にお問い合わせください。

このページをご覧の方に
おすすめの不動産物件

  •